HÉMIN
BrandVision Design
CorpVision Studio
ResidenceCraft
Contact
Back to MODE
HÉMIN
BrandVision Design
CorpVision Studio
ResidenceCraft
Contact
Back to MODE
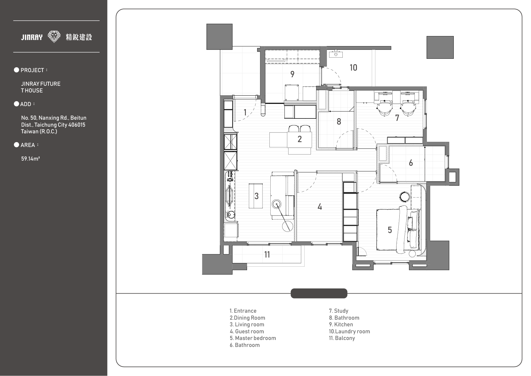
精銳嚮未來 T 宅
FOYER
LIVING ROOM
DINING ROOM
GUEST ROOM
MASTER BEDROOM